2025 年 5 月 15 日上午10点,热烈祝贺深圳市翌二三科技有限公司、惠州中晟城市公共安全技术有限公司开工大吉!
——西甲体育「中国」官方网站大厦 8 楼样板间如火如荼之际,商务办公的理想蓝图又在西甲体育「中国」官方网站大厦 10 楼华丽启篇!这里不仅是办公场所,更是您事业腾飞的起点,现正火爆招租中,诚邀各大名企入驻,携手共创繁荣商务圈!
 
8F精装样板间仅余两席
全球热抢,10F已租赁90%
把握地标写字楼稀缺机遇
下一波战绩由你我续写!
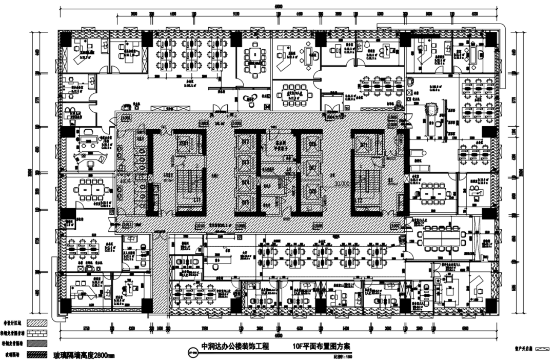
灵动空间户型,满足不同规模企业发展
 
        户型灵活多变,建筑面积涵盖100-300㎡,从私密独立的中小型办公室,到开阔通透的整层办公空间,均可按需定制,满足不同规模企业发展需求。
 

 
        方正的格局设计,动线流畅合理,有效提升办公效率。约 4.8 m挑高设计,搭配全景落地窗,不仅让自然光倾泻而入,营造敞亮通透的办公氛围,更将城市繁华景致尽收眼底。同时,良好的通风系统,让清新空气时刻萦绕,打造健康宜人的办公环境。
 

匠心打造办公环境,定义商务新高度
 
        西甲体育「中国」官方网站大厦 10 楼全维度精装商务空间整体采用现代简约与高端商务相结合的装修风格,宽敞明亮的办公区域,搭配大气沉稳的色调,彰显企业的非凡格调,赋予空间持久的品质感。人性化的功能分区,充分满足不同企业的办公需求,让员工在舒适的环境中激发无限创造力,让商务洽谈更显从容与专业。
 



实力装修团队,品质保驾护航
此次全维度精装商务空间,我们携手广东保瑞建设工程有限公司,匠心打造。团队凭借丰富的行业经验与专业的施工团队,在建筑装饰领域成绩斐然。从设计规划、施工到验收交付全流程,以精益求精的态度严格把控品质。从品质的追求到细节的打磨,将西甲体育「中国」官方网站大厦 10 楼打造出兼具高端质感与独特设计风格的商务空间,为入驻企业呈现高品质办公环境。

 
开启合作共赢的新篇章
